Và ngôi nhà phố 1 trệt – 1 lầu – sân thượng diện tích 9x17m của gia đình anh Bình tại Quận 7 cũng bắt đầu bằng khát khao giản dị: “Có một không gian đủ rộng để cả gia đình quây quần mỗi chiều, một góc an yên để cha mẹ nghỉ ngơi, và một mái nhà bền vững để con trẻ lớn lên.”
Đó cũng là lý do anh Bình quyết định chọn Việt Quang Group – một công ty xây nhà uy tín, chuyên về xây nhà trọn gói, xây nhà phần thô, sửa chữa nhà tại TP. HCM – để đồng hành từ bản vẽ đầu tiên đến ngày hoàn thiện ngôi nhà.
Liên hệ tư vấn xây dựng: 096 1993 915
1. Khi ý tưởng thành hình – bản thiết kế mang đúng tinh thần của gia chủ
Trong buổi trao đổi đầu tiên, anh Bình chia sẻ mong muốn có một ngôi nhà hiện đại, thoáng sáng, có gara riêng và một khoảng sân thượng xanh để gia đình có thể thư giãn sau những ngày bận rộn.
Từ những mong muốn đó, đội ngũ KTS của Việt Quang Group đã phác hoạ nên một công trình “đo ni đóng giày”:
Hình khối hiện đại, mạnh mẽ
Phối hợp các mảng vuông, đường lam ngang và hệ mái che sân thượng tinh tế. Tỷ lệ mặt tiền được cân chỉnh hài hòa, tạo ấn tượng ngay từ cái nhìn đầu tiên.
Cửa kính lớn – ánh sáng tràn ngập
Cửa kính nhôm Xingfa giúp lấy sáng tự nhiên tối đa, tiết kiệm điện năng và mang đến cảm giác rộng rãi.
Mảng ốp giả đá sang trọng ở tầng trệt
Tạo điểm nhấn tinh tế, tăng vẻ bề thế của tổng thể ngôi nhà.
Sân thượng xanh – vừa thư giãn vừa tăng thẩm mỹ
Không gian lý tưởng cho việc trồng cây, đặt bàn trà, tổ chức tiệc nhỏ cuối tuần.
2. Công năng 9x17m – tối ưu mọi nhu cầu sinh hoạt
Tầng trệt
- Gara riêng (một yêu cầu lớn của anh Bình)
- Phòng khách rộng, thoáng
- Bếp + bàn ăn liên thông
- WC chung
Mặt bằng mở giúp gia đình sinh hoạt thuận tiện, trẻ nhỏ chạy nhảy thoải mái.
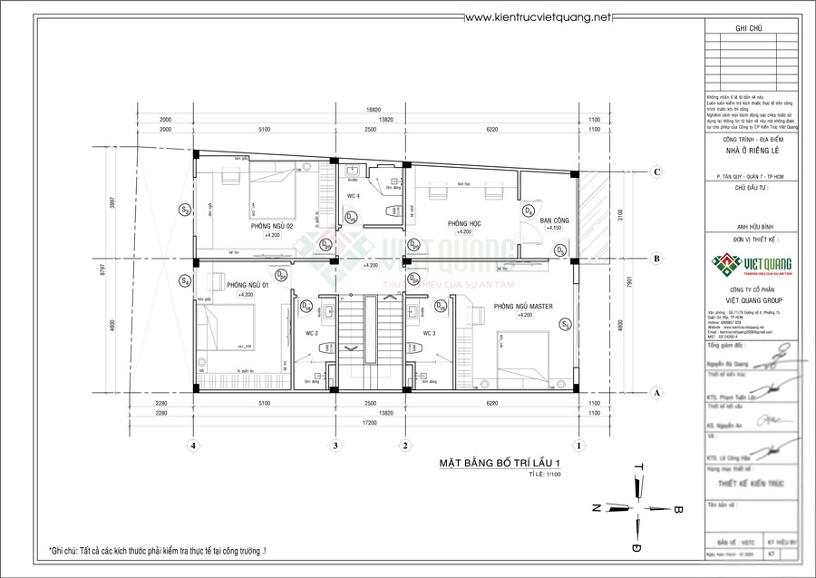
Lầu 1
- Phòng ngủ master lớn
- 1 phòng ngủ nhỏ
- Ban công trước
- WC khép kín
Không gian yên tĩnh, riêng tư và đầy đủ tiện nghi.
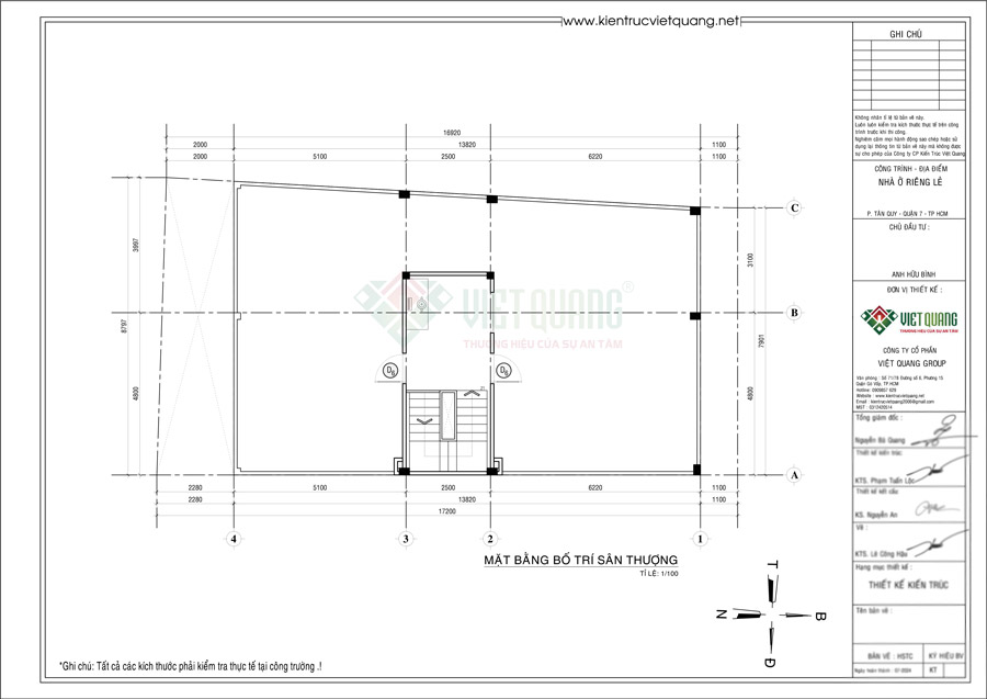
Sân thượng
- Khu giặt phơi
- Mảng xanh thư giãn
- Có thể bố trí thêm bàn cà phê hoặc khu BBQ
Việt Quang Group luôn ưu tiên thiết kế dựa trên sự tiện dụng – bền vững – tiết kiệm chi phí cho gia chủ.
3. Thi công trọn gói: vì sao anh Bình tin tưởng Việt Quang Group?
Bản vẽ rõ ràng – dự toán minh bạch
Ngay từ đầu, anh Bình đánh giá cao cách làm việc chi tiết và cam kết không phát sinh chi phí của Việt Quang Group.
Vật tư đúng chuẩn, thi công đúng kỹ thuật
Hệ kết cấu được giám sát chặt chẽ, đảm bảo độ bền vững lâu dài.
Tiến độ nhanh – chuyên nghiệp
Từ lúc đào móng đến hoàn thiện, mọi giai đoạn đều được cập nhật thường xuyên cho gia chủ.
Dịch vụ trọn gói – gia chủ không phải lo bất cứ điều gì
Từ thủ tục pháp lý, thiết kế, thi công phần thô cho đến hoàn thiện nội thất, tất cả đều được thực hiện bởi một đội ngũ duy nhất.
Nếu bạn quan tâm xây nhà phần thô, xây nhà trọn gói hay sửa chữa nhà, hãy gọi ngay 096 1993 915 để được tư vấn.
4. Ngôi nhà – thành quả của sự đồng hành và thấu hiểu
Khi bàn giao công trình, anh Bình chia sẻ: “Điều tôi thích nhất là Việt Quang biết cách biến mong muốn của khách hàng thành sự thật. Mọi thứ đều rõ ràng, gọn gàng và đúng như cam kết từ ban đầu.”
Ngôi nhà 9x17m vì thế không chỉ là nơi ở, mà còn là thành quả cho hành trình quyết định – tin tưởng – đồng hành cùng một đội ngũ chuyên nghiệp.
Mẫu nhà phố 1 trệt lầu sân thượng 9x17m tại Quận 7 là minh chứng rõ ràng cho năng lực của Việt Quang Group trong việc thiết kế và thi công những công trình hiện đại – bền vững – tối ưu công năng.
Nếu bạn cũng đang chuẩn bị xây nhà và cần một đơn vị công ty xây nhà uy tín:
- Việt Quang Group – Hotline: 096 1993 915
- Chuyên: xây nhà trọn gói – xây nhà phần thô – sửa chữa nhà – thiết kế kiến trúc.

























































































































































































